Projects   •   Recent Builds

Reimagining Manufactured Homes — A Groundbreaking Project in Paso Robles

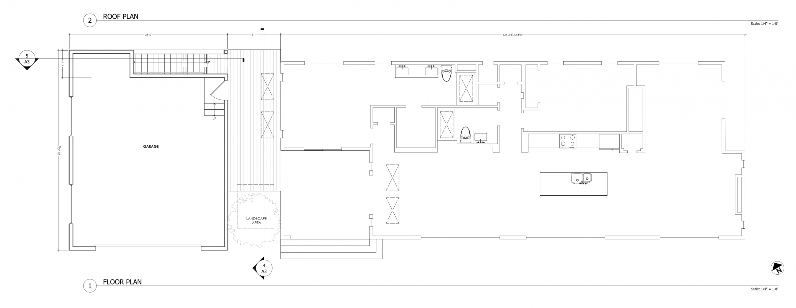
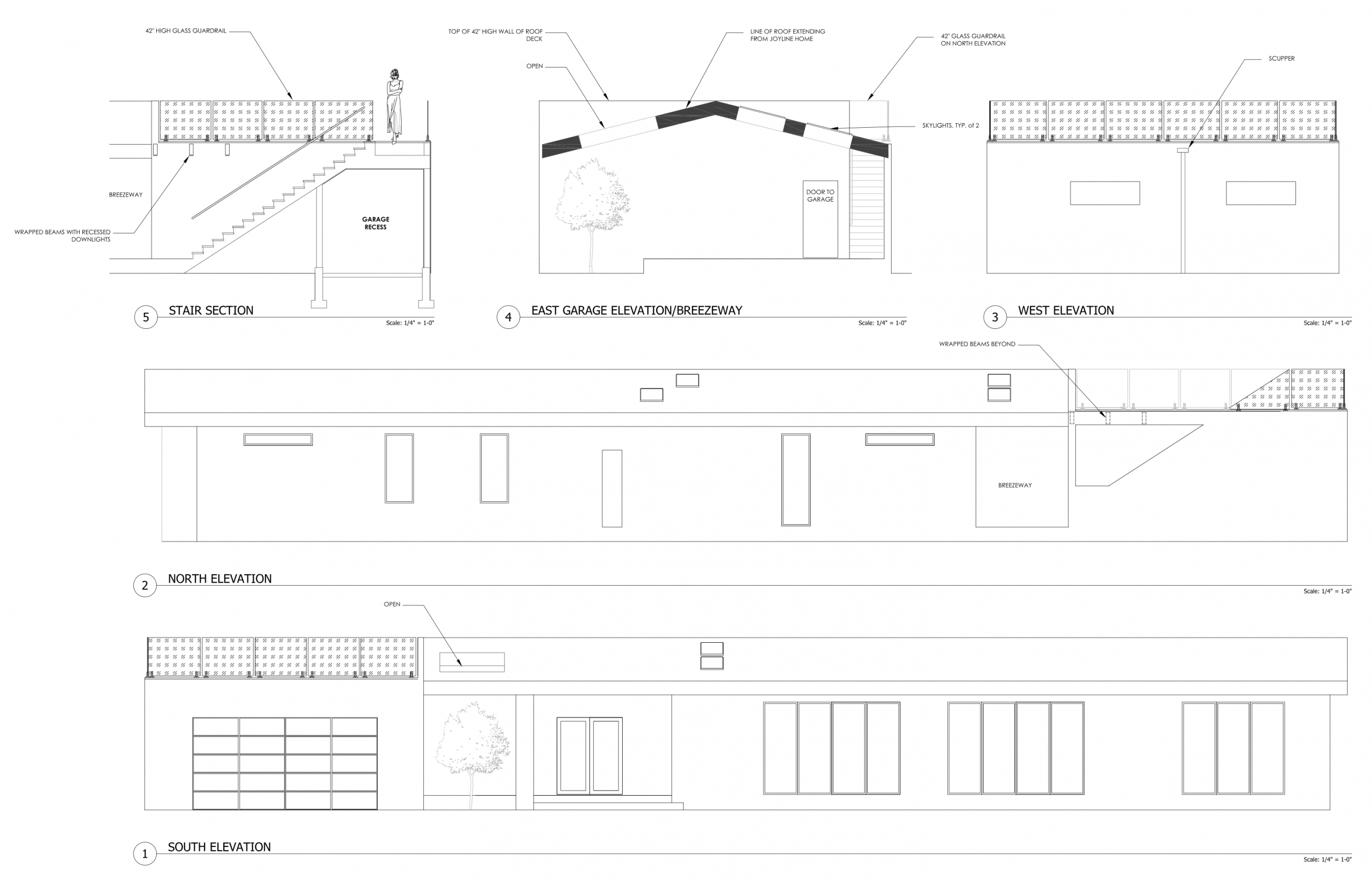
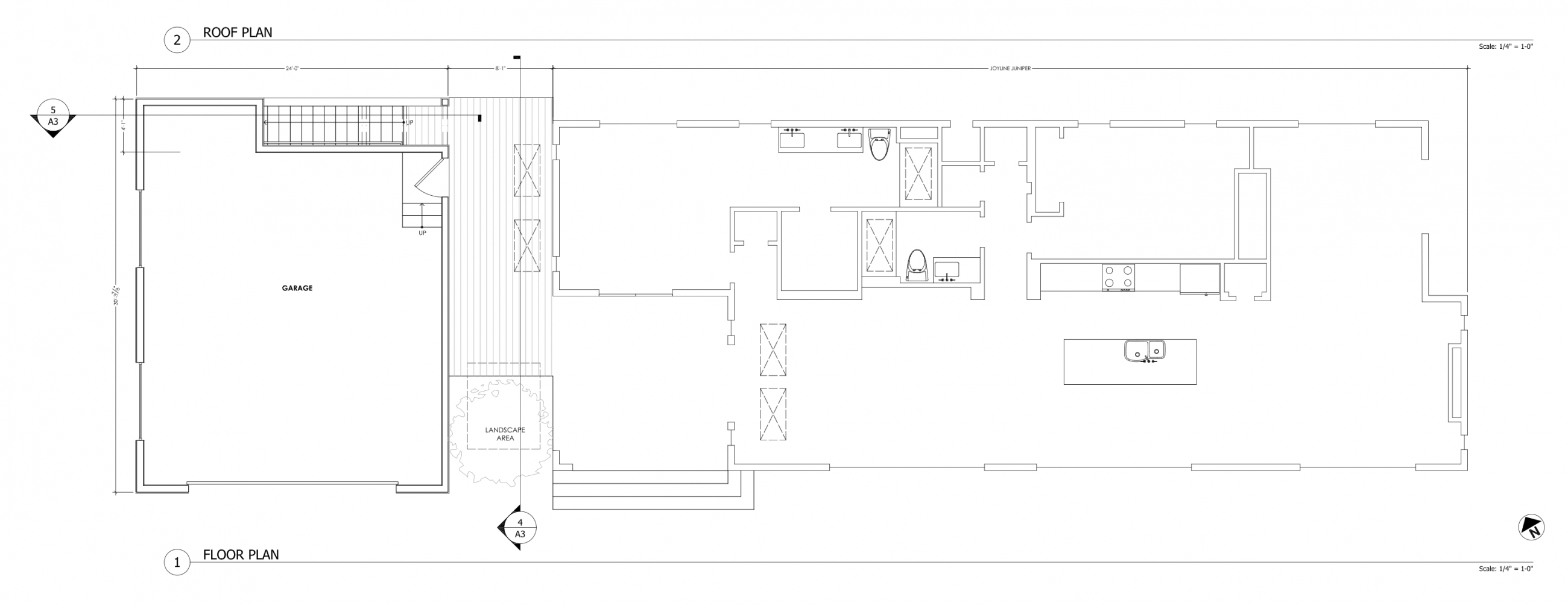
At Joy Line Homes, we’re always pushing the boundaries of what’s possible with manufactured housing, and our newest project in Paso Robles is a bold step into the future of affordability and customization.

This isn’t your average manufactured home. From concept to construction, the goal was clear:
deliver a high-end, architecturally striking home, without the sky-high price tag.
The result? A first-of-its-kind manufactured home that includes:

A Front-side pool and a custom-built garage.
Tesla solar shingles and Tesla powerbank.
A rooftop panoramic deck and modern finishes throughout.

This project demonstrates that luxury living doesn’t have to mean overpaying or waiting years to be built.
By leveraging HUD-compliant factory construction, we’ve created a residence that’s equal parts cost-effective and design-forward.

Models
Let's Get Started

Please Select the form that applies to you by selecting the appropriate tab above.

Contact info

We are based in Santa Cruz County ,
California

Tel: (831) 888-Home
Email: info@joylinehomes.com

Business Hours: 9am - 6pm

Choose your finishes

Explore our finishes with the Interactive Design Board Browse multiple options, mix and match your favorites, and bring your dream home to life, one detail at a time.